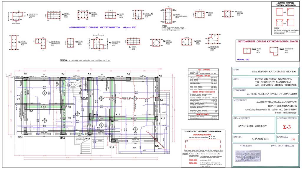
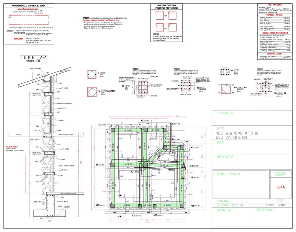
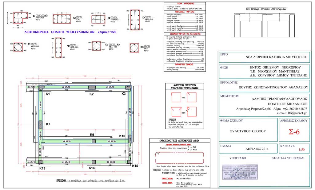
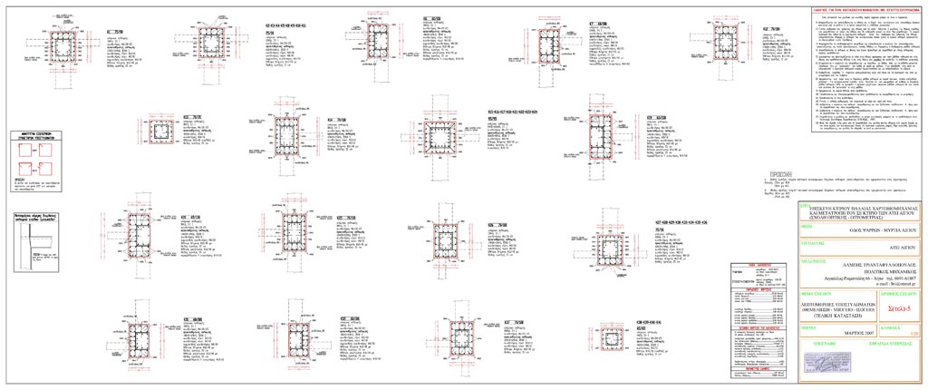
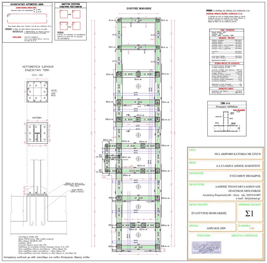
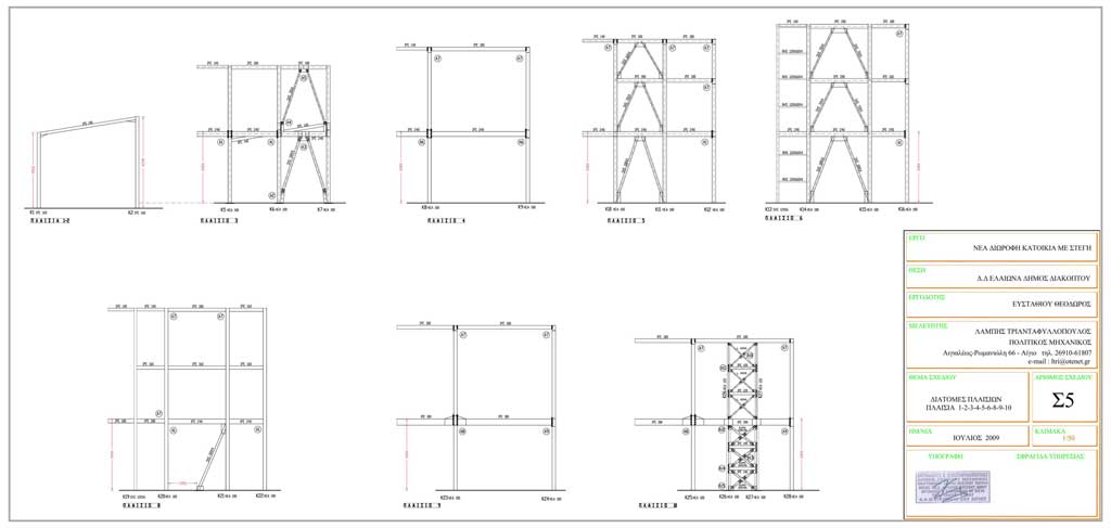
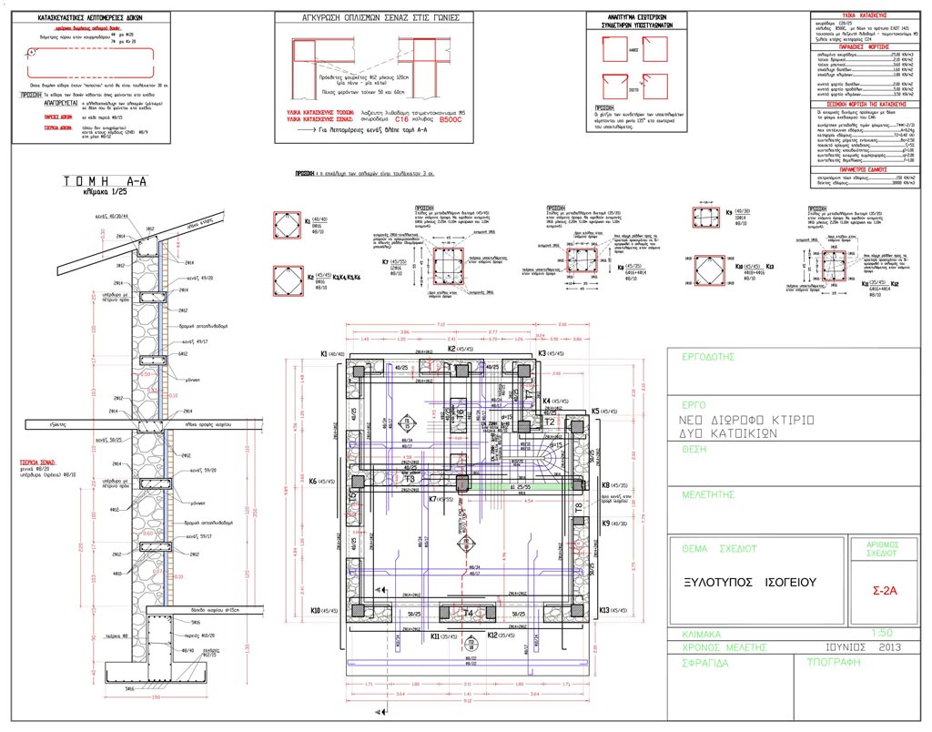
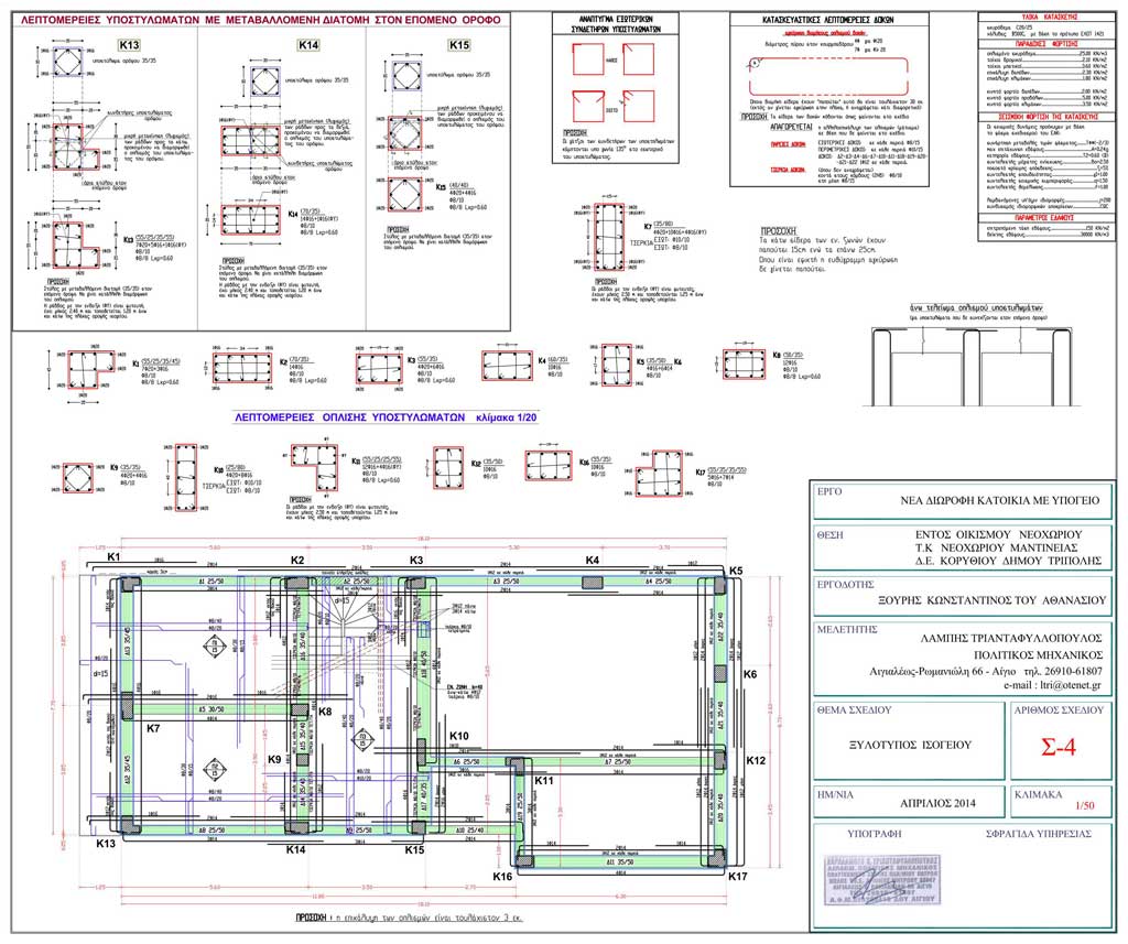
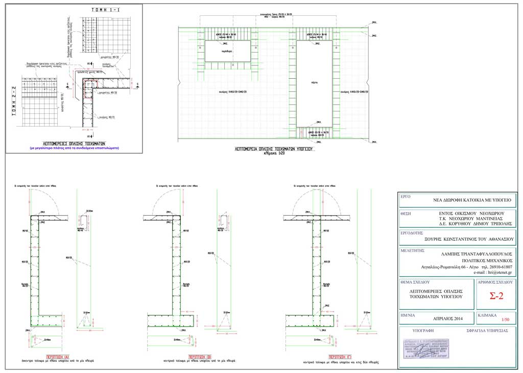
Η λεπτομερής σχεδίαση αποτελεί μία εργασία στην οποία δίνεται ιδιαίτερη έμφαση από το γραφείο μας. Τα σχέδια φτιάχνονται σχεδόν «εξ’αρχής» χωρίς το πλεονέκτημα από άποψης χρόνου της αυτοματοποίησης του υπολογιστή η οποία μπορεί μεν να εξοικονομεί χρόνο σχεδίασης, αλλά υστερεί σε αναλυτική παρουσίαση και κατασκευαστικές λεπτομέρειες, με αποτέλεσμα πολλές φορές τη σπατάλη των υλικών ή ακόμη και λάθη κατά την κατασκευή (π.χ. λανθασμένη τοποθέτηση διαμήκους οπλισμού δοκών και μάλιστα κάποιες φορές με επιζήμια αποτελέσματα για τον ικανοτικό έλεγχο κόμβων, μη σωστή διαμόρφωση μεταλλικών κόμβων κ.λ.π.). Έτσι, φροντίζουμε πάντα να εμπλουτίζονται τα σχέδια με τις απαραίτητες κατασκευαστικές λεπτομέρειες, έτσι ώστε να καθίσταται εύκολη η εφαρμογή της μελέτης στο εργοτάξιο ή και στο εργοστάσιο.
Παρακάτω φαίνονται κάποια ενδεικτικά σχέδια από μελέτες που έχουν εκπονηθεί:
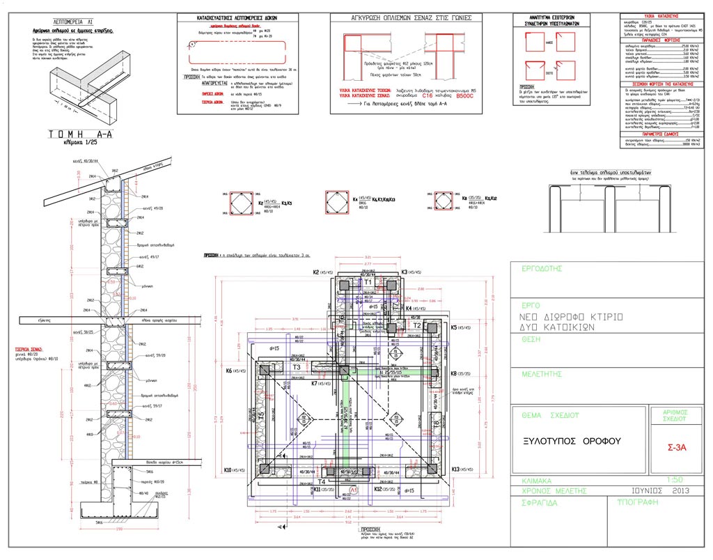
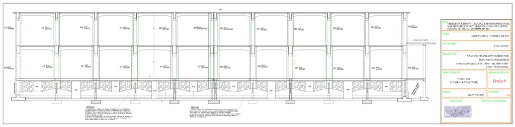
Κτίρια Οπλισμένου Σκυροδέματος
https://www.xt-engineer.gr/gr/sxediasi#sigProGalleria6bb0ccc270
Μεταλλικές - Σύμμικτες Κατασκευές
https://www.xt-engineer.gr/gr/sxediasi#sigProGalleriad4bbf16e22
https://www.xt-engineer.gr/gr/sxediasi#sigProGalleria758265004a
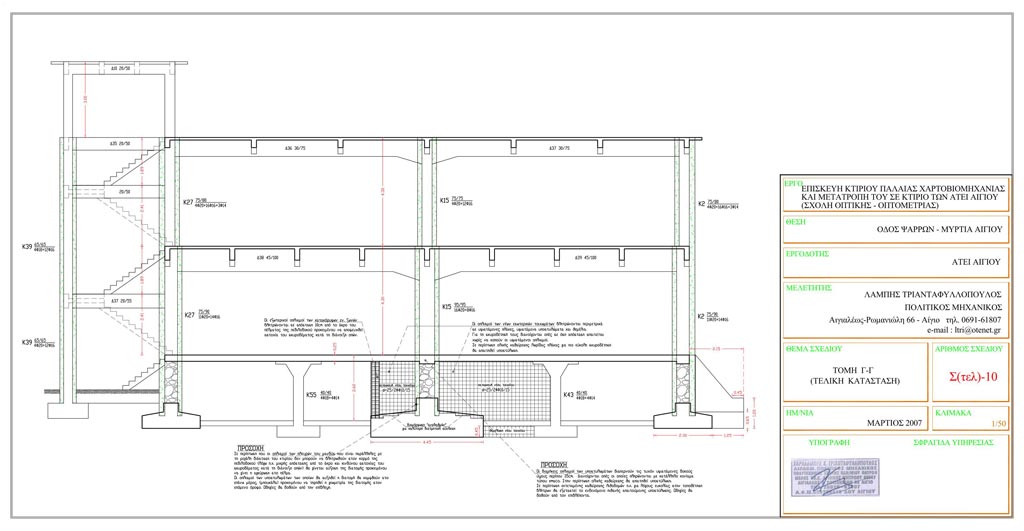
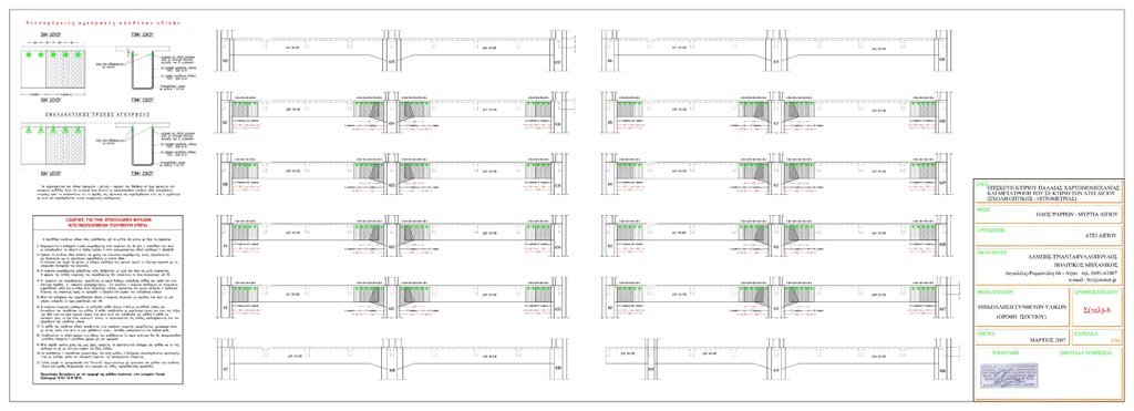
Αποτίμηση - Ενίσχυση
https://www.xt-engineer.gr/gr/sxediasi#sigProGalleriac5a90e769d
Φέρουσα Τοιχοποιΐα
https://www.xt-engineer.gr/gr/sxediasi#sigProGalleria2f907cead0
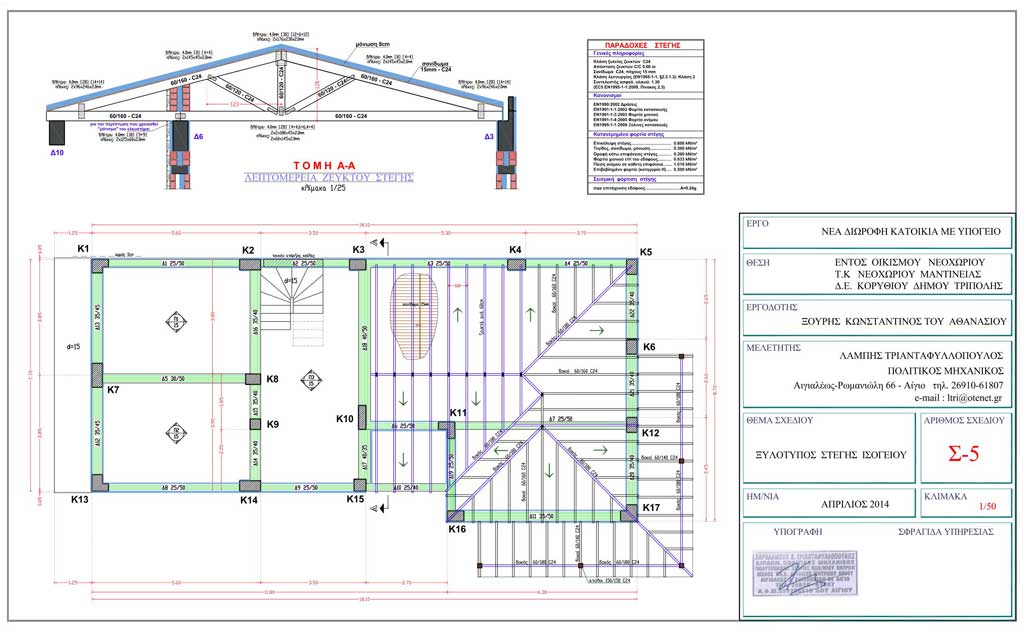
Ξύλινες Κατασκευές
https://www.xt-engineer.gr/gr/sxediasi#sigProGalleriadd48f6973d
